西安西馳電氣股份有限公司(證券代碼831081),成立于2002年,是一家專業從事電力電子產品研發、制造、銷售的高新技術企業。
了解更多- 產品概述
- 技術特點
- 使用條件
- 規格型號
MAXWELL H系列是由西安西馳電氣股份有限公司自主研發的一款驅動電機的高壓變頻裝置。我司可為客戶提供可靠、高性能、柔性高壓電機驅動系統。
電壓等級 | 6KV | 10Kv |
功率范圍 | 185KW-5MW | 200KW-10MW |
系統拓撲 | 移相變壓器+全橋整流+H橋逆變 | |
輸出電壓 | 0-6KV | 0-10KV |
輸出頻率 | 0-120Hz | |
冷卻方式 | 空氣冷卻 | |
1.輸入電流諧波
采用變壓器移相位技術,多脈沖整流,6kv系統30脈沖,10kv系統48脈沖。
滿足IEEE519-2014標準。
輸入無濾波器。
2.輸入功率因數
輸入變壓器移相技術結合級聯單元提供電機需要的無功功率,輸入功率因數高達0.96,電機通過高壓變頻器后,無需無功補償設備。
3.輸出電壓波形
模塊級聯技術,H橋逆變,模塊輸出疊加形成多電平,輸出正弦波,確保電機工作在較佳狀態,適應新老電機。
4.整機效率
效率高達97%,對移相變壓器進行較優電磁設計,減少損耗。
5.電網適應性
輸出電壓波動范圍-15%-+15%,頻率波動-10%-+10%,在波動范圍內通過輸出注入諧波控制,確保輸出額定電壓。最低電壓-45%可以工作。當電網瞬間掉電,高壓變頻器將進入瞬間掉電不停機功能,維持電機工作,在系統儲能耗盡前電網恢復,系統將繼續工作。
6.防雷保護
市電輸入、輸出、控制電源輸入、通信信號具有防雷保護功能。
7.模塊化設計
控制系統、電氣系統、功率單元、風機系統、檢測單元采用模塊化設計,高可靠、維護方便、易操作。
8.一體化設計
10KV 1-2MW,功率段內結構尺寸一個設計,10KV 1-2.25MW、10KV 200KW-1MW和6KV 185KW-0.8MW,功率段內結構尺寸一個設計。體積小,節約占地空間。
9.低壓軟啟功能
移相變壓器通過低壓軟啟,變壓器輸出正常電壓后,高壓側切換到電網,軟啟動確保移相變壓器在切換到電網時無沖擊電流。
10.控制電源
控制系統電源采用模塊化設計,供電采用雙路冗余供電,一路來自低壓,一路來自高壓,高可靠性,控制系統內部核心存儲芯片,采用超級電容供電,確保系統掉電時,運行數據存儲。
11.豐富電機控制方式
根據電機的應用場景,提供VF控制、矢量控制、轉矩控制模式(DTC),適應各種電機負載。
12.故障保護
電機過流保護、輸出過載保護、輸入過壓過流保護、移相變壓器過熱保護、通信故障保護、功率單元故障、輸出短路保護、IGBT過流保護、運行門開保護等。
13.豐富的用戶接口
具有RS485、模擬量輸入、模擬量輸出、數字量輸入、數字量輸出、編碼器輸入、功率控制、電源輸出、高壓斷路器控制和檢測、緊急停機等接口,滿足各種應用場景。
14.功率單元設計
獨立風道設計,適應工業各種應用場景。光纖控制信號無干擾。模塊控制部分采用DSP數字控制。
15.主控系統
采用DSP+FPGA架構,完成電機算法、邏輯控制、故障處理、SVPWM調節、通信、信號處理等功能,精準、快速、可靠完成電機控制。
16.無擾切換技術
高壓變頻器可以實現同步電機或異步電機軟啟動,電機從0HZ啟動,逐步運行到電網頻率50HZ,然后電機從變頻狀態切換到工頻電網,切換過程平穩,對電機無沖擊電流,保證電機安全運行。
17.易維護性
采用模塊化設計,各個部分都是獨立的模塊,維護時只需要把相應的模塊進行處理,可以在機器正常運行情況下更換或清理通風防塵網。
18.環境適應性強
防護等級IP30;污染等級Ⅲ;
滿足-15℃啟機,最高溫度55℃下可以工作;
存儲和運輸溫度-40℃-+70℃;
整機通過三級公路運輸試驗;
功率單元、控制系統、檢測單元、電氣系統等模塊通過0.6米跌落試驗和振動試驗。
功率輸入 | |
輸入電壓 | 電壓等級6KV或10KV,電壓波動范圍在-10%~+10%以內輸出額定功率。 在-45%~-10%以內輸出功率降額使用。 |
輸入頻率 | 50Hz,頻率波動范圍-10%~+10% |
輸入電流諧波 | THDI≤4%,滿足國際標準IEEE519-2014和國家標準GB/T14549-93電能質量標準 |
輸入功率因數 | 最高可達0.96 |
功率輸出 | |
輸出電壓范圍 | 0~6KV 或0~10KV |
輸出頻率 | 0-120Hz |
系統效率 | 最高可達97% |
輸出過載 | 負載小于105%可以長時間工作,110%~160%以內反時限保護。 |
輸出電流諧波 | THDI≤4%,滿足國際標準IEEE519-2014和國家標準GB/T14549-93電能質量標準 |
控制方式 | |
控制方式 | V/F、無速度傳感器VC控制、有速度傳感器VC控制 |
加減速時間 | 0.1-3600S |
頻率分辨率 | 數字設定0.01Hz,模擬設定0.1×設定最高頻率 |
頻率精度 | 數字設定±0.01%最高頻率,模擬設定±0.2%×設定最高頻率 |
速度分辨率 | 數字設定0.01Hz,模擬設定0.1×設定最高頻率 |
速度精度 | ±0.5% |
速度波動 | ±0.3% |
啟動轉矩 | 大于120% |
勵磁制動 | 制動時間0-600S,起始頻率0-50Hz,制動電流0-100%額定電流 |
直流制動 | 制動時間1-600S,起始頻率0-30Hz,制動電流0-150%額定電流 |
電壓自動調整 | 輸入電壓在-10%~+10%以內變化時,能自動保持輸出電壓恒定,額定輸出電壓波動不大于±3% |
整機參數 | |
冷卻方式 | 風冷 |
防護等級 | IP30 |
移相變壓器絕緣等級 | Class H(180℃) |
本地操作方式 | 觸摸屏 |
輔助電源 | ≥20KVA |
環境適應性 | |
運行環境溫度 | 0~+40℃ -15℃可以直接起機,40℃~55℃容量降額使用 |
存儲環境溫度 | -40℃~+70℃ |
運輸環境溫度 | -40℃~+70℃ |
相對濕度 | 5%-95%無凝露 |
海拔高度 | 小于1000米 |
安裝場所 | 室內安裝 |
污染等級 | 污染等級Ⅲ;偶爾存在導電污染物 |
用戶接口 | |
繼電器型干接點輸出 | 6 220VAC/24VDC |
晶體管型干接點輸出 | 4 24VDC |
數字量多功能輸入 | 8 24VDC |
模擬量輸入 | 3 |
模擬量輸出 | 2 |
通信接口 | 2 |
高壓斷路器控制 | 1 |
碼盤接口 | 1 |
電源接口 | 380V AC |
MaxWell 6KV系列
產品型號 | 適配 電機功率kW | 額定輸 出電流A | 重量 kg | 外形尺寸 mm |
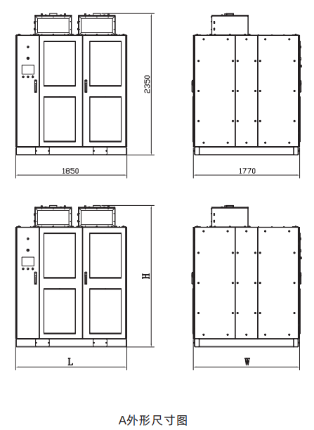
MaxWell.H0185.06 | 185 | 23 | 2030 | 1850*1770*2350 (A) |
MaxWell.H0200.06 | 200 | 25 | 2049 | |
MaxWell.H0220.06 | 220 | 27 | 2073 | |
MaxWell.H0250.06 | 250 | 31 | 2109 | |
MaxWell.H0280.06 | 280 | 34 | 2145 | |
MaxWell.H0315.06 | 315 | 38 | 2187 | |
MaxWell.H0355.06 | 355 | 43 | 2236 | |
MaxWell.H0400.06 | 400 | 48 | 2363 | |
MaxWell.H0450.06 | 450 | 54 | 2385 | |
MaxWell.H0500.06 | 500 | 60 | 2410 | |
MaxWell.H0560.06 | 560 | 67 | 2479 | |
MaxWell.H0630.06 | 630 | 75 | 2609 | |
MaxWell.H0710.06 | 710 | 85 | 2664 | |
MaxWell.H0800.06 | 800 | 94 | 2773 | |
MaxWell.H0900.06 | 900 | 106 | 2894 | |
MaxWell.H1000.06 | 1000 | 117 | 3060 | |
MaxWell.H1120.06 | 1120 | 131 | 3268 | |
MaxWell.H1250.06 | 1250 | 144 | 3502 | |
MaxWell.H1400.06 | 1400 | 161 | 3577 | |
備注:參考6KV三相異步電機6KV/50HZ,實際選型需要根據電機確定。 | ||||
MaxWell 10KV系列
產品型號 | 適配電機 功率kW | 額定輸 出電流A | 重量 kg | 外形尺寸 mm |
MaxWell.H0220.10 | 220 | 17 | 2163 | 1850*1770*2350 (A) |
MaxWell.H0250.10 | 250 | 19 | 2202 | |
MaxWell.H0280.10 | 280 | 21 | 2241 | |
MaxWell.H0315.10 | 315 | 24 | 2286 | |
MaxWell.H0355.10 | 355 | 26 | 2338 | |
MaxWell.H0400.10 | 400 | 29 | 2475 | |
MaxWell.H0450.10 | 450 | 33 | 2505 | |
MaxWell.H0500.10 | 500 | 36 | 2526 | |
MaxWell.H0560.10 | 560 | 40 | 2600 | |
MaxWell.H0630.10 | 630 | 45 | 2740 | |
MaxWell.H0710.10 | 710 | 51 | 2799 | |
MaxWell.H0800.10 | 800 | 56 | 2916 | |
MaxWell.H0900.10 | 900 | 63 | 3046 | |
MaxWell.H1000.10 | 1000 | 70 | 3225 | |
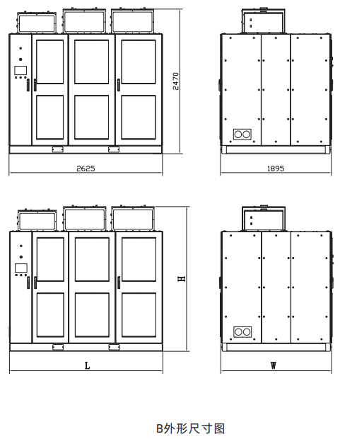
MaxWell.H1120.10 | 1120 | 79 | 3848 | 2650*1900*2490 (B) |
MaxWell.H1250.10 | 1250 | 87 | 4100 | |
MaxWell.H1400.10 | 1400 | 97 | 4180 | |
MaxWell.H1600.10 | 1600 | 110 | 4610 | |
MaxWell.H1800.10 | 1800 | 124 | 4990 | |
MaxWell.H2000.10 | 2000 | 138 | 5180 | |
MaxWell.H2250.10 | 2250 | 154 | 5573 | |
備注:參考10KV三相異步電機10KV/50HZ,實際選型需要根據電機確定。 | ||||




















